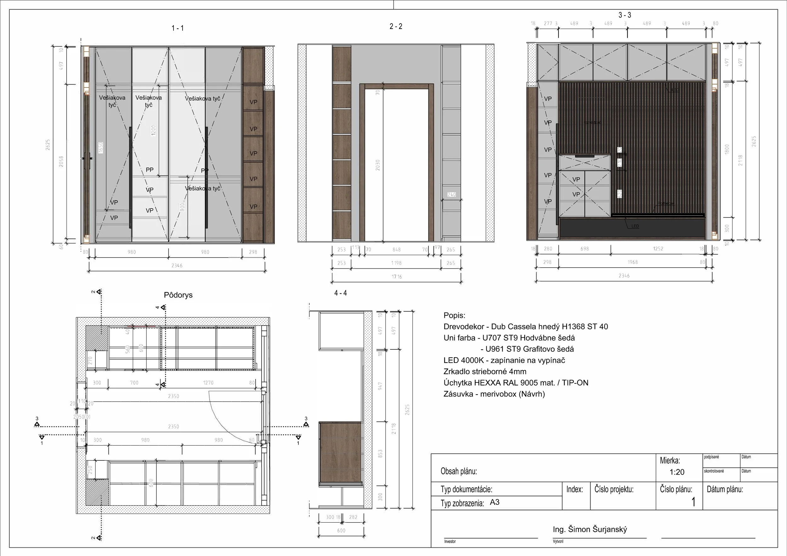
Balík Basic

Balík Basic je ideálny, ak už máte hotovú vizualizáciu a potrebujete ju premeniť na podklady, podľa ktorých sa dá nábytok alebo riešenie reálne vyrobiť. Zameriavam sa na realizovateľnosť, správne rozmery, detaily a jasné výkresy pre stolára alebo realizačnú firmu.


Máte vizualizáciu alebo koncept?

Neváhajte nás osloviť!!